
Ang mga bakod sa seguridad ng metal ay ginawa ng LiWeiyuan, isang propesyonal na tagagawa ng istraktura ng bakal na Tsino. Garantiyang Garantisadong Pabrika ng Garantiyang Sales. Malawakang ginagamit ang mga ito bilang mga aparato sa seguridad para sa mga dingding, bakod, at enclosure. Inaanyayahan namin ang iyong pagtatanong!
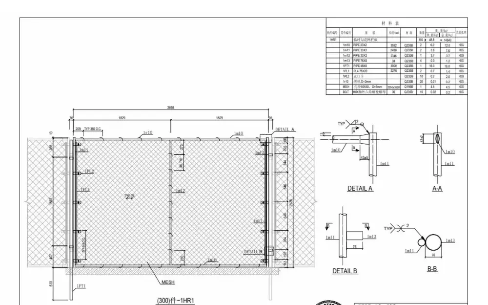
Ang mga pangunahing sangkap na istruktura ng mga bakod na seguridad ng metal ng LiWeiyuan ay kasama ang frame, paayon na mga beam, konektor, at mga post ng suporta. Ang frame ay pangunahing itinayo mula sa iba't ibang mga materyales na metal at nagmumula sa iba't ibang mga hugis upang matugunan ang mga indibidwal na pangangailangan ng disenyo. Pangunahing kasama ang mga materyales sa frame na galvanized steel sheet, galvanized round pipe, galvanized square pipe, at chain link bakod. Ang mga materyales na ito ay pinili para sa kanilang tibay at paglaban sa kaagnasan. Ang mga paayon na beam ay naayos sa pagitan ng mga frame ng bakod, pagpapahusay ng kanilang lakas at katigasan, na ginagawang mas matatag at maaasahan.
Ang mga konektor ay mga pangunahing sangkap na nagkokonekta sa bakod sa mga post ng suporta. Ginagamit namin ang galvanized steel sheet, galvanized round steel, at galvanized pipe. Ang mga materyales na ito ay nag -aalok ng mahusay na paglaban ng hangin at lindol, na pumipigil sa pag -loosening habang ginagamit at tinitiyak ang seguridad at katatagan ng bakod. Ang mga post ng suporta ay ang pangunahing sumusuporta sa mga sangkap ng bakod. Maaari kaming gumamit ng iba't ibang mga post ng suporta depende sa lokasyon, pangangailangan, at kapaligiran. Gayunpaman, ang mga materyales na ginamit para sa mga post na ito ay dapat magkaroon ng mataas na katatagan, paglaban sa hangin at lindol, at tibay upang matiyak ang kaligtasan sa paggamit.


Ang aming mga bakod sa seguridad ng metal ay matatanggal at magagamit muli. Ang kanilang mga pamamaraan ng taas, lapad, at koneksyon ay maaaring idinisenyo at makagawa upang umangkop sa mga pangangailangan ng customer at mga sitwasyon ng aplikasyon, tinitiyak ang kaligtasan at kabaitan sa kapaligiran.


Ang aming mga bakod sa seguridad ng metal ay epektibong magkahiwalay na mga site ng konstruksyon mula sa iba pang mga gusali at kalsada, na lumilikha ng isang nakahiwalay na workspace. Maaari silang ma -disassembled at muling isama kung kinakailangan.
Ang mga lambat ng paghihiwalay ng workshop ay karaniwang ginagamit sa mga pang -industriya na workshop bilang kagamitan sa kaligtasan, lalo na sa pag -demarcate ng mga lugar ng trabaho, ibukod ang mga mapanganib na kagamitan, at protektahan ang mga manggagawa.
Ang aming mga produkto ay maaari ring magamit bilang panloob na bodega ng bodega upang maprotektahan ang mga panloob na lugar ng trabaho. Malawakang ginagamit ang mga ito sa iba't ibang mga pasilidad ng imbakan, tulad ng mga bodega, sentro ng logistik, at pabrika.
Ang mga karaniwang sukat para sa mga bakod ng seguridad ng metal na metal ay kinabibilangan ng: 2 metro ang haba ng 1.5 metro ang taas; 2.5 metro ang haba ng 2 metro ang taas; at 3 metro ang haba ng 2.5 metro ang taas. Magagamit ang mga pasadyang laki. Kasama sa mga materyales na bakal ang Q235B, Q355B, A36, at A572, na nakakatugon sa mga pamantayang European at Amerikano.
