
Ang mga gatter ng istraktura ng bakal ay isang mahalagang sangkap ng sistema ng kanal ng bubong ng isang gusali. Ang kanilang pangunahing pag -andar ay upang mangolekta ng tubig -ulan mula sa bubong, idirekta ito sa mga vertical na tubo, at pagkatapos ay ilabas ito sa panlabas na sistema ng kanal, na pinipigilan ito mula sa direktang pagsabog ng mga pader o pagbabad ng mga pundasyon. Ang disenyo at pag -install ng produkto ng LiWeiyuan ay nailalarawan sa pamamagitan ng mataas na lakas at magaan na timbang, tinitiyak ang makinis na kanal at pambihirang tibay.
Ang mga gatter ng istraktura ng bakal ay isang mahalagang sangkap ng sistema ng kanal ng bubong ng isang gusali. Ang kanilang pangunahing pag -andar ay upang mangolekta ng tubig -ulan mula sa bubong, idirekta ito sa mga vertical na tubo, at pagkatapos ay ilabas ito sa panlabas na sistema ng kanal, na pinipigilan ito mula sa direktang pagsabog ng mga pader o pagbabad ng mga pundasyon. Ang disenyo at pag -install ng produkto ng LiWeiyuan ay nailalarawan sa pamamagitan ng mataas na lakas at magaan na timbang, tinitiyak ang makinis na kanal at pambihirang tibay.
Ang istruktura ng bakal na bakal ni Liweiyuan ay gawa sa mga materyales na lumalaban at lumalaban sa epekto.
Ang aming produkto ay mainit-dip galvanized, na nag-aalok ng mahusay na paglaban sa kaagnasan, mababang gastos, at isang mahabang buhay ng serbisyo. Magagamit sa mga kapal ng 1.5-2.5 mm, angkop ito para sa karamihan ng mga aplikasyon.
Ginawa ng hindi kinakalawang na asero, ang produktong ito ay nag -aalok ng paglaban sa kaagnasan at partikular na angkop para sa mga baybayin o mahalumigmig na kapaligiran. Magagamit sa mga kapal ng 1.0-2.0 mm, nag-aalok ito ng isang mas mataas na presyo ngunit isang mahabang buhay ng serbisyo.
Ang aming mga produktong bakal na may kulay na kulay ay batay sa galvanized na bakal, na pinahiran ng isang patong na lumalaban sa panahon, tulad ng polyester o fluorocarbon, para sa parehong paglaban sa kaagnasan at pandekorasyon na mga epekto. Magagamit sa mga kapal ng 1.2-2.0 mm, angkop ang mga ito para sa mga gusali na nangangailangan ng isang mataas na antas ng apela ng aesthetic.
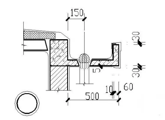
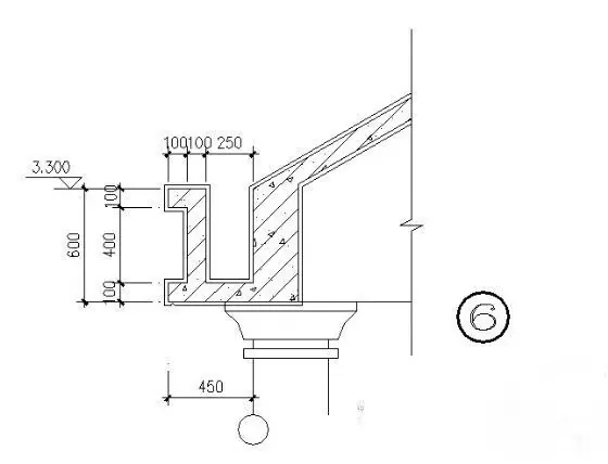
Ang istruktura na form ng gutter ng bakal na istraktura ay kailangang maiakma sa dalisdis ng bubong at disenyo ng eaves. Kasama sa mga karaniwang uri ang U-shaped at V-shaped. Ang proseso ng pag -install ay ang mga sumusunod:
Ang aming mga gatter ng istraktura ng bakal ay gumagamit ng anggulo ng bakal na gutter bracket upang ma -secure ang mga ito sa mga beam o purlins ng istraktura ng bakal na istraktura. Ang bracket spacing ay 600-1000mm upang matiyak kahit na ang pamamahagi ng stress sa buong kanal.
Ang mga natapos na gatters ay pre-sized at konektado sa site gamit ang mga konektor o hinang. Kinakailangan ang sealant sa kantong sa pagitan ng kanal at pagbagsak ng bubong.
Maaari kaming mag -install ng isang kumikislap sa itaas ng bubong ng bubong. Ang mas mababang dulo ng kanal ay dapat mailagay sa ilalim ng bubong na decking at selyadong may sealant. Ang mga butas ng alisan ng tubig ay dapat ibigay sa ilalim ng kanal, lalo na para sa koneksyon sa mga riser ng tubig.
Ang aming istraktura ng bakal na istraktura ng gatters ay may kasamang pagputol ayon sa mga sukat ng pagguhit, baluktot, pagpipinta, tapos na inspeksyon ng produkto, packaging, at pagpapadala. Ang mga gutter ng istraktura ng bakal na LiWeiyuan ay dinisenyo at naka -install upang matiyak ang paglaban ng kaagnasan, makinis na kanal, at tibay, tinitiyak ang mahusay na kanal.